www.activeradiator.com
Call today to Order
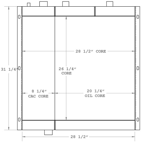
290017 - Gardner Denver Air / Oil Cooler

Special Notes
Charge Air Cooler, Oil Cooler,
Options / Pricing / Availability
To see availability click on the variation part number
Core Dimensions
Height:
25.75"
Width:
28"
Depth:
2.25"
Overall Height:
31.25"
Description
Product Type:
Combo Unit
Filler Neck:
None
OE Numbers
290017
206ECH201
206ECH201