www.activeradiator.com
Call today to Order
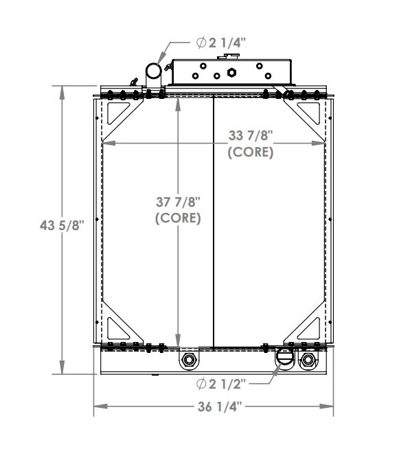
451987 - E-One Fire Truck Radiator

Special Notes
Must confirm by drawing before ordering.
Options / Pricing / Availability
To see availability click on the variation part number
New Accounts | 800-779-4223 |
Atlanta, GA | 404-472-0790 |
Charlotte, NC | 215-289-9480 |
Chicago, IL | 815-725-1470 |
Cincinnati, OH | 866-540-9638 |
Dallas, TX | 214-462-7855 |
Houston, TX | 713-670-0220 |
Los Angeles, CA | 562-921-0748 |
Philadelphia, PA | 215-289-9480 |
Phoenix, AZ | 602-338-9343 |
Tampa, FL | 863-606-5999 |
Core Dimensions
Height:
37.875"
Width:
34.125"
Depth:
3.25"
Overall Height:
43.625"
Description
Product Type:
Radiator
Filler Neck:
Center
Inlet:
2.25" (Left)
Outlet:
2.5" (Right)
Oil Cooler:
Bottom
OE Numbers
451987
451987ATWF
451987ATWF
Product Information
Similar to 45-1587ATWF units, please verify by drawing before ordering.